© 2026 Regimo Zug

Wohnen in der malerischen Zuger Altstadt

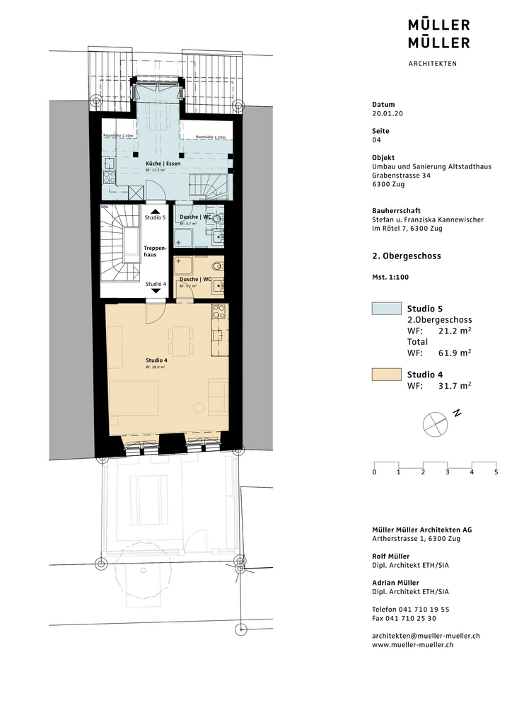
Die exklusive Maisonette-Dachwohnung begeistert durch ihre Lage mitten in der historischen Zuger Altstadt, nur wenige Schritte vom malerischen Seeufer entfernt. Eingebettet in ein vielfältiges Angebot an Einkaufsmöglichkeiten und Restaurants geniessen sie hier urbanes Wohnen. Die Stadt Zug verbindet internationales Flair mit hoher Lebensqualität und überzeugt durch die optimale Verkehrsanbindung. Zürich und Luzern sind komfortabel und schnell zu erreichen.

Für Ihre Wohnqualität:
- Maisonette-Wohnung mit viel Charme
- Fischgrät-Parkett im Wohn-/Essbereich (Eiche geölt)
- Feinsteinzeugplatten in der Nasszelle
- Moderne Küche mit Backofen, Induktionskochfeld, Geschirrspüler
- Dusche/WC mit Spiegelschrank und Unterbaumöbel

Den Mietern steht eine Lobby im Eingangsbereich und einen Sitzplatz vor dem Gebäude zur Mitbenutzung zur Verfügung.

Mietzinsdepot: CHF 5'980.00

Interessiert? Dann lohnt sich eine Besichtigung.
20 m
Öffentlicher Verkehr
20 m
Einkaufsmöglichkeit
700 m
Schule / Kindergarten
3.3 km
Stadtzentrum
aussicht Aussicht