© 2026 Regimo Zug

Leben und das Leben geniessen in der malerischen Zuger Altstadt

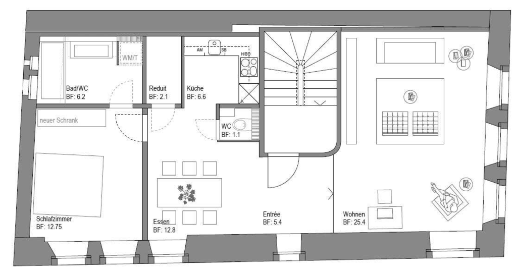
Sie werden es möglicherweise bereuen, wenn Sie zu spät kommen. Denn diese stilvolle Wohnung befindet sich an einmalig malerischer Lage in der romantischen Altstadt von Zug unweit des Seeufers entfernt. Die Liegenschaft wurde 2015 komplett saniert und überzeugt mit besten Einkaufsmöglichkeiten und Restaurants in unmittelbarer Nähe und macht so das Leben einzigartig. Was Sie ebenfalls schätzen werden, sind die optimalen Anbindungen an den öffentlichen Verkehr. Die Bushaltestelle Kolinplatz befindet sich praktisch vor der Haustüre. Zudem ist der Bahnhof Zug nur wenige Fahrminuten entfernt.

Für Ihre Wohnqualität:
 - Wohn-/Schlafzimmer und Küche mit Parkett
 - Bad/WC mit Mosaik
 - Moderne Küche mit Glaskeramikkochfeld und Geschirrspüler
 - Helle Wohnräume mit Tageslicht
 - Schlafzimmer mit Einbauschränken
 - Badezimmer mit Badewanne und Waschturm
 - Separate Gästetoilette
 - Reduit

Diese Wohnung verfügt weder über einen Balkon noch einen Lift.

Mietzinsdepot: CHF 7'640

Interessiert? Dann lohnt sich eine Besichtigung.
100 m
Öffentlicher Verkehr
150 m
Einkaufsmöglichkeit
1.5 km
Schule / Kindergarten
3.5 km
Stadtzentrum
aussicht Aussicht

Weitere Objekte von Regimo Zug