© 2026 Regimo Zug

Bürofläche zu fairen Konditionen

Zwischen Cham und Rotkreuz an zentraler und verkehrstechnisch gut erschlossener Lage liegt das Industrie- und Gewerbequartier "Bösch". Zug, Luzern und Zürich sind mit öffentlichen wie privaten Verkehrsmitteln schnell erreichbar. In der Nähe befindet sich eine Autobahnausfahrt, die eine gute Anbindung an das Strassennetz bietet. Die Bushaltestelle "Hünenberg, Bösch" der Buslinien Nr. 648 und Nr. 651 liegt in unmittelbarer Nähe. Auf dem Areal befinden sich ein Restaurant sowie ein Fitnesscenter, welche die Bedürfnisse nach Verpflegung und Sport abdecken.

Gut fürs Geschäft:
- Helle Räumlichkeiten
- Flexible Nutzungsmöglichkeiten
- Elektrisch bedienbare Storen
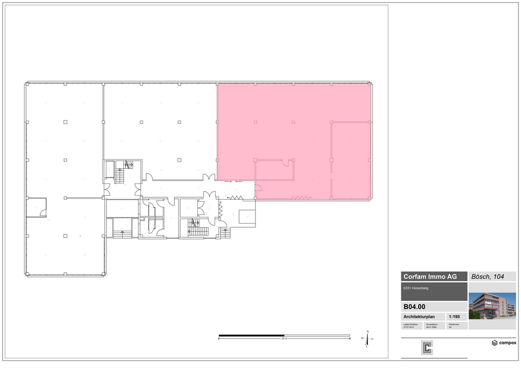
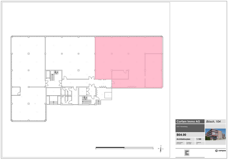
- Vermietung im Rohbau mit möglicher Übernahme des vorhandenen Mieterausbaus
- Optional: Miete der angrenzenden Fläche von 102 m2
- Bodenbelastung: 1500 kg pro m2
- Raumhöhe: ca. 4.08 m
- Personenaufzug 13 Pers. (1'000 kg) vom 2. UG bis 3. OG
- Warenlift (2'500 kg) vom 1. UG bis 3. OG
- WC-Anlage für Damen und Herren zur Mitbenutzung

Zusätzlich auf Wunsch:
Einstellplätze à CHF 100.00 pro Monat
Abstellplätze à CHF 80.00 pro Monat

Mietzinsdepot: CHF 28'500.00

Interessiert? Wir freuen uns auf Ihre Kontaktaufnahme.
100 m
Öffentlicher Verkehr
2 km
Einkaufsmöglichkeit
1.8 km
Schule / Kindergarten
1 km
Stadtzentrum

Weitere Objekte von Regimo Zug