© 2026 Regimo Zug

Ankommen und wohlfühlen

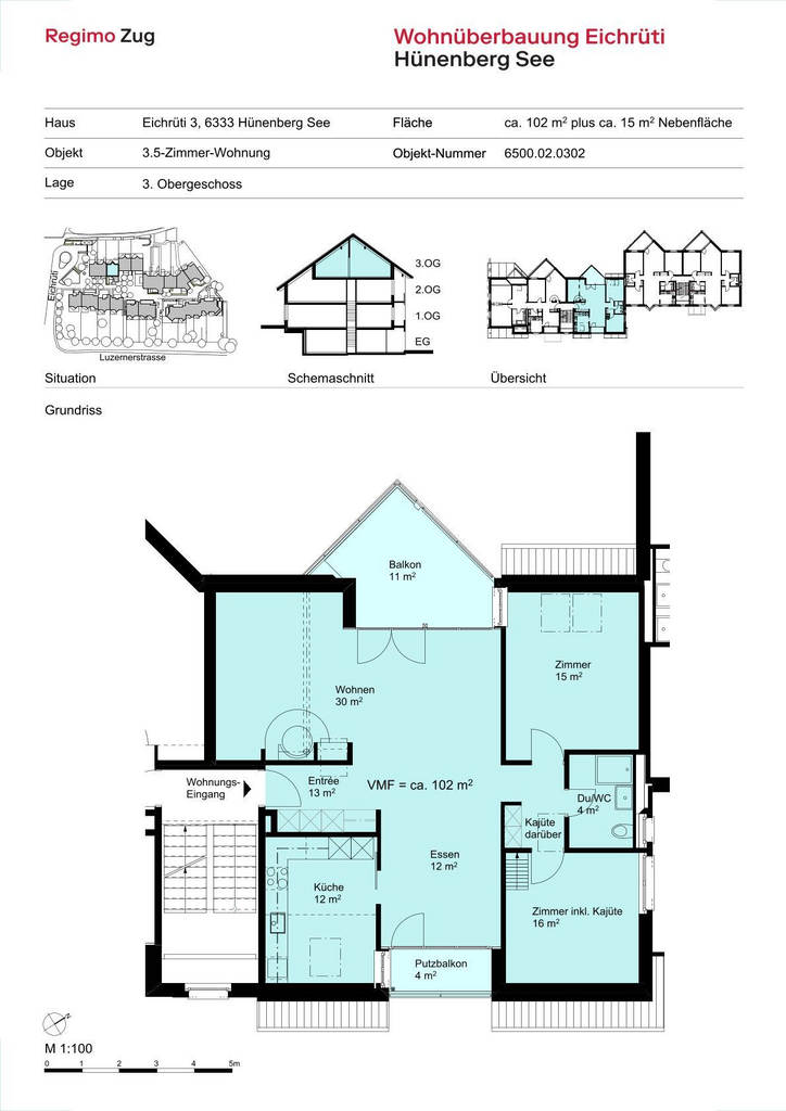
Diese Wohnung liegt in einer gepflegten Wohnüberbauung in ruhiger, ländlicher Umgebung. Eine Bushaltestelle sowie diverse Einkaufsmöglichkeiten erreichen Sie bequem in wenigen Gehminuten. Der Zugersee sowie Golf- und Tennisanlagen befinden sich ebenfalls in unmittelbarer Nähe.

Für Ihre Wohnqualität:
- Wohn-/ Schlafzimmer mit Parkettboden
- Küche und Badezimmer mit Plattenboden
- Moderne Küche mit Glaskeramikkochfeld sowie Geschirrspüler
- Private Waschmaschine in der Küche
- Einbauschränke im Korridor
- Estrichabteil in der Wohnung
- Balkon
- Kellerabteil
- Cheminée

Bitte beachten Sie, dass das Gebäude über keinen Lift verfügt.

Zusätzlich auf Wunsch:
1 Einstellplatz à CHF 130.00 pro Monat

Mieten ohne Kaution: Für dieses Mietobjekt ist kein Mietzinsdepot zu leisten.

Interessiert? Dann lohnt sich eine Besichtigung.
150 m
Öffentlicher Verkehr
850 m
Einkaufsmöglichkeit
1.1 km
Schule / Kindergarten
2.1 km
Stadtzentrum
balkon Balkon / Sitzplatz
kinderfreundlich Kinder-freundlich
Garage Garage / Parkplatz